Skip to content
Smart Start/Legacy Home Planner
Overview – The Plan
Phase 1 – Vision
Phase 2 – Blueprint
Phase 3 – The Build
Phase 4 – Completion
Lifestyle Brief
X
HOME
Floor Plans/Design Services
Floor Plan Design Process
Plans Data Base
Plan Design Services – (SLTN)
Log Home Packages
Our Approach
Log Profiles
Log Package Contents
Gallery
Project Folders
CONTACT US
Barns/Pergolas/Framing Packages
Out Buildings & Framing
Barns Package
Shade Package
Framing Package
Resources
Resources Landing Page
Log Home Configurator
Shade Configurator
Log Home Feasibility Study
Budget Guides Tool Kit
Blogs & Newsletter
Floor Plans Flipbook
Shop
Shop Landing Page
Chico Store
Large Timbers
Siding
Stain
Hardware
E-Store
Our Story
Meet the Team
Our Heritage
X
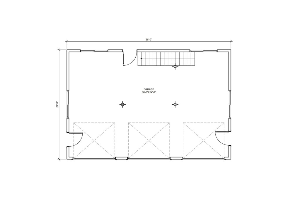
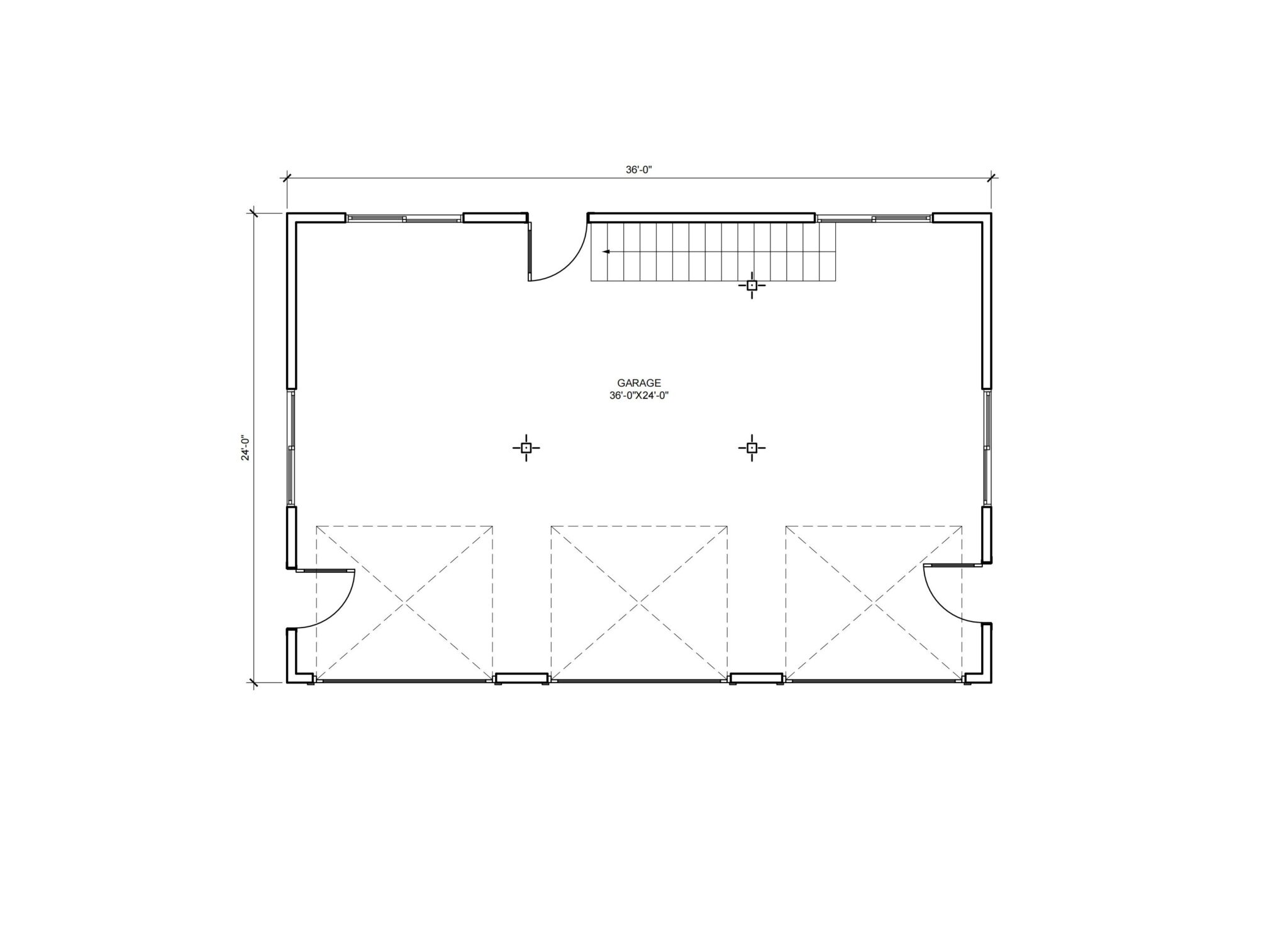
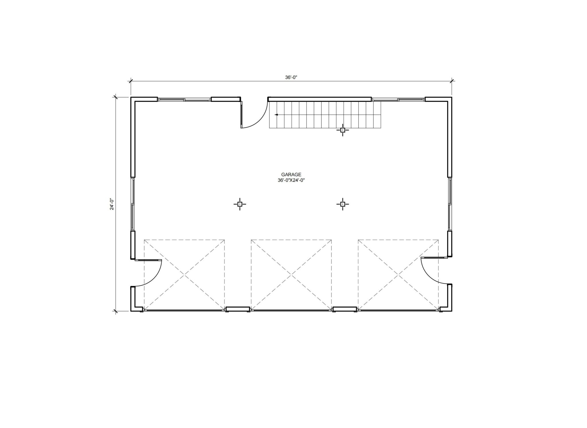
Monitor Garage 3624
0 bedrooms
0 bathrooms
3624 sq ft
2 floors
Contact us
Share
Log Home Floor Plan
[floorplanpreview]
Prev
Previous
Paradise
Next
Lookout
Next