Share:

Lookout

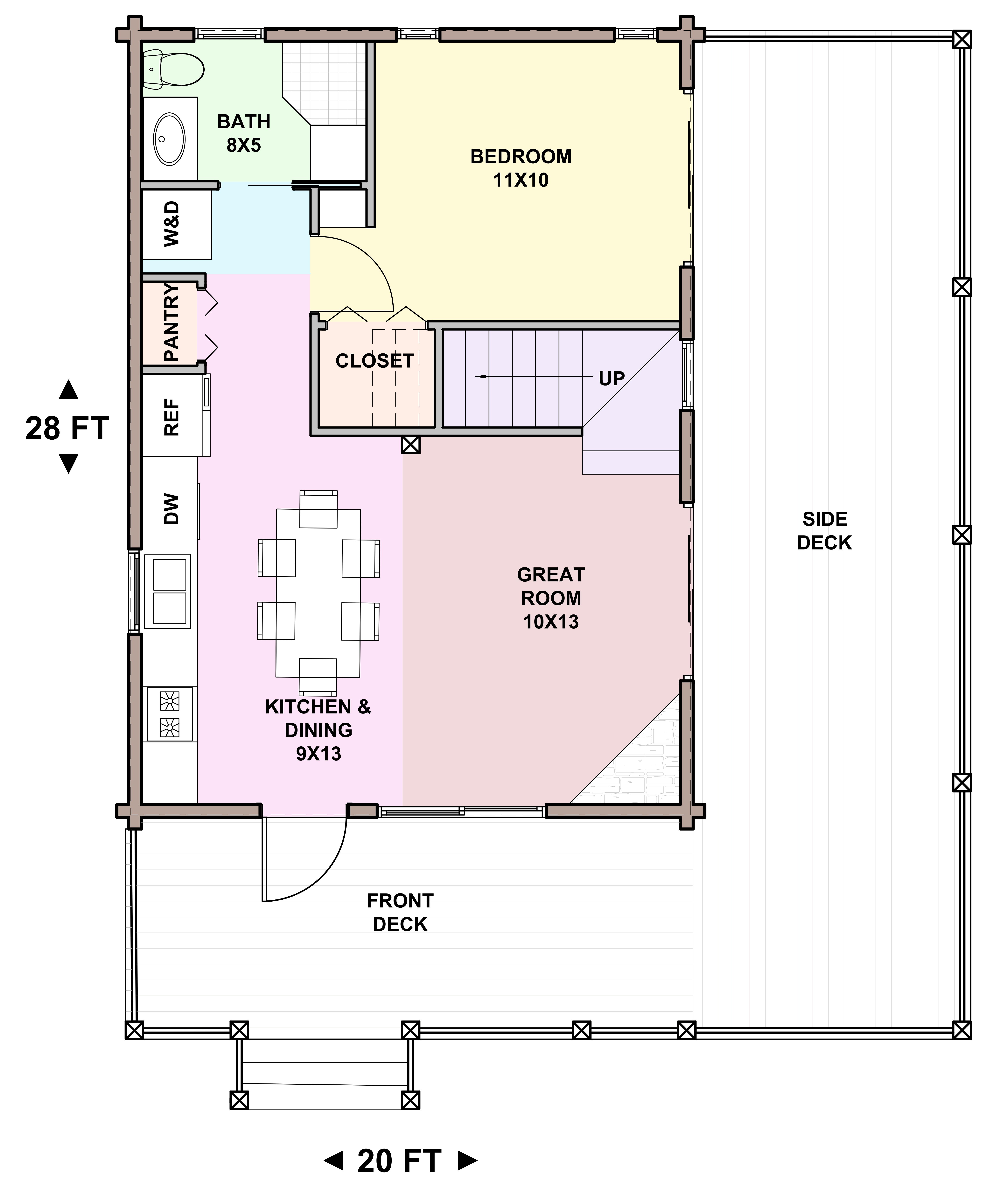
Encompassing a humble 855 square feet, the Lookout floor plan packs a punch in function and looks while complementing its natural surroundings.
The upper loft level adds living space without expanding the footprint, with expansive windows peaking out from behind the gable allowing loft users a beautiful ‘lookout,’ as it is aptly named.
Although customizable, this rendition demonstrates 526 square feet of porch additions in a wrap-around style, connecting the exterior and interior.
The loft space is open living space, allowing it to be customized into a second bedroom if desired. This floor plan depicts a one bedroom, one bathroom layout. 
Inspired by this home? Get in touch with our team to start the process of building your own custom log house today.

Lookout floor plan custom home nestled in the forest
Lookout floor plan custom home nestled in the forest

Share:

Lookout

Encompassing a humble 855 square feet, the Lookout floor plan packs a punch in function and looks while complementing its natural surroundings.
The upper loft level adds living space without expanding the footprint, with expansive windows peaking out from behind the gable allowing loft users a beautiful ‘lookout,’ as it is aptly named.
Although customizable, this rendition demonstrates 526 square feet of porch additions in a wrap-around style, connecting the exterior and interior.
The loft space is open living space, allowing it to be customized into a second bedroom if desired. This floor plan depicts a one bedroom, one bathroom layout. 
Inspired by this home? Get in touch with our team to start the process of building your own custom log house today.

Specs

Floor Plans

Elevations

Feature/Criteria
Sierra Log and Timber
Competitors (e.g., Monster Plans, Others)
Initial Design Retainer Fee
Cost of Engineered Plans
Plan Modifications (if needed)
Transparency & Support 
Total Estimated Cost (Standard Engineered Plan)
Total Estimated Cost (With Modifications)
Key Value Point