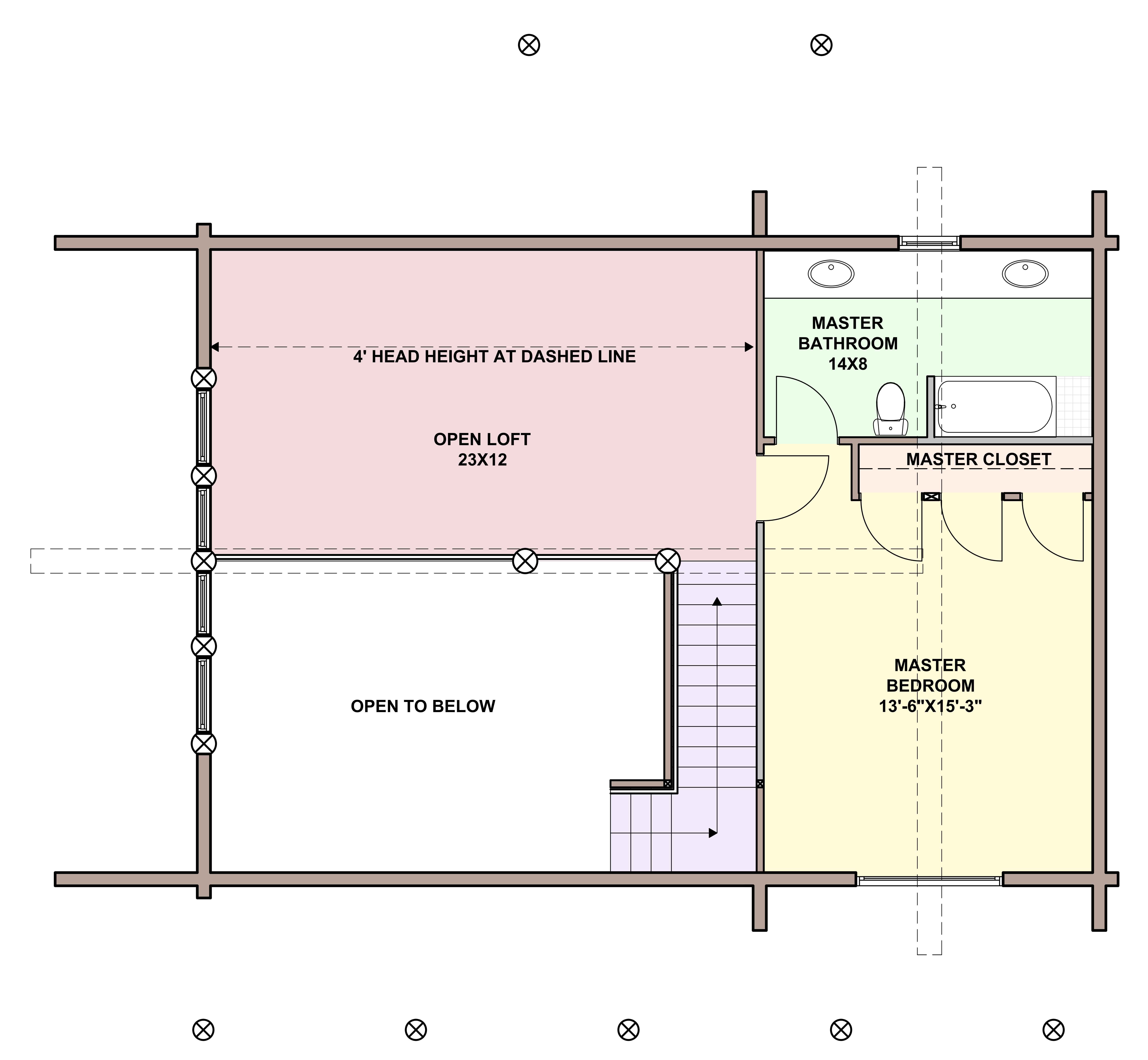
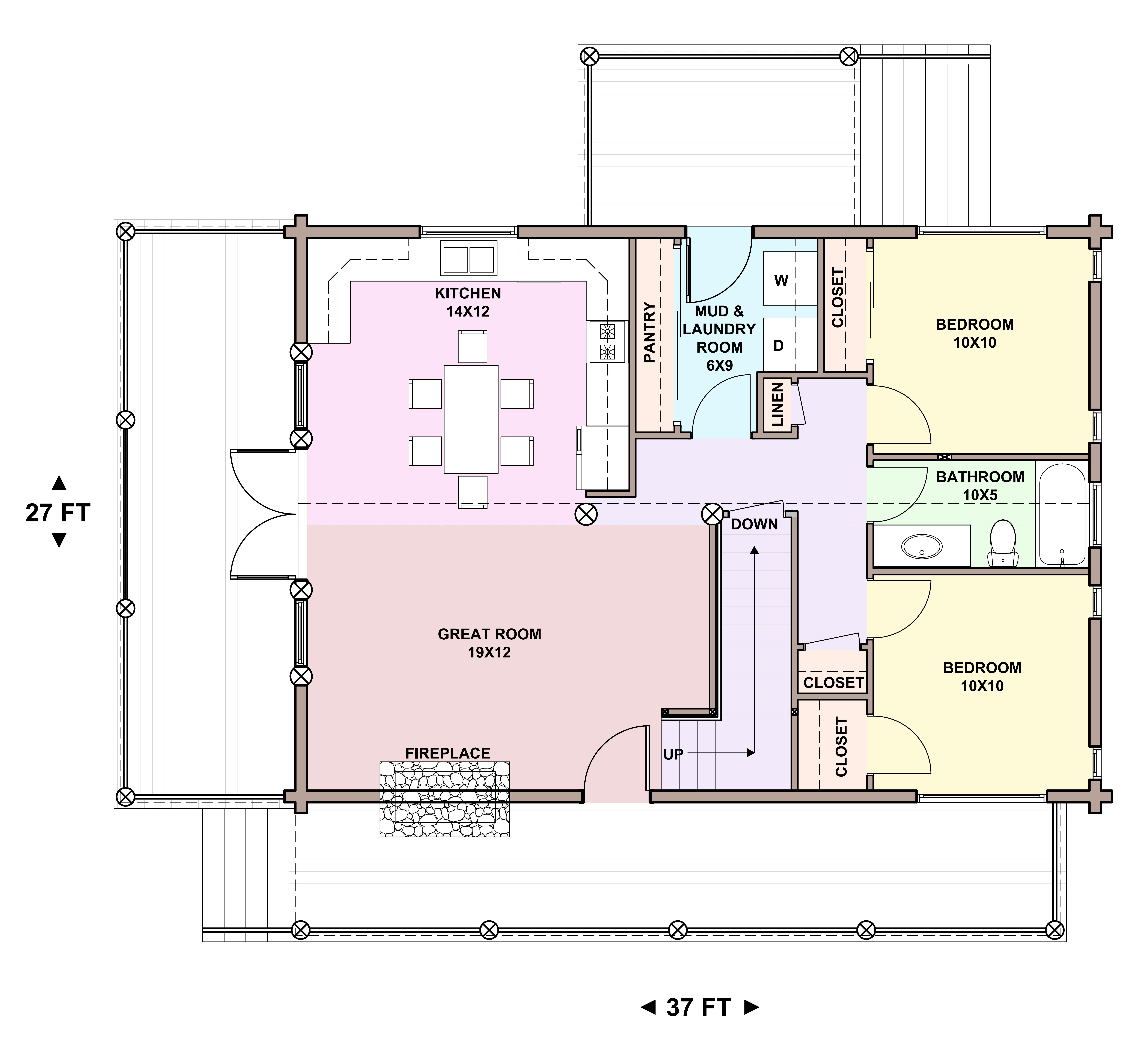
The Woodson Log Home by Sierra Log & Timber offers 2,074 sq ft of beautifully designed living space, ideal for full-time living or a relaxing retreat. Featuring 2 bedrooms and 2 bathrooms, this custom log home blends rustic elegance with modern comfort. The open-concept layout connects the great room, kitchen, and dining areas, perfect for family gatherings or quiet evenings by the stone fireplace. Expansive decks enhance indoor-outdoor living, ideal for enjoying nature’s beauty. Large picture windows flood the interior with natural light, and vaulted ceilings with exposed timber beams add warmth. Customize your dream home today with Sierra Log & Timber.










The Woodson Log Home by Sierra Log & Timber offers 2,074 sq ft of beautifully designed living space, ideal for full-time living or a relaxing retreat. Featuring 2 bedrooms and 2 bathrooms, this custom log home blends rustic elegance with modern comfort. The open-concept layout connects the great room, kitchen, and dining areas, perfect for family gatherings or quiet evenings by the stone fireplace. Expansive decks enhance indoor-outdoor living, ideal for enjoying nature’s beauty. Large picture windows flood the interior with natural light, and vaulted ceilings with exposed timber beams add warmth. Customize your dream home today with Sierra Log & Timber.
Feature/Criteria | Sierra Log and Timber | Competitors (e.g., Monster Plans, Others) |
|---|---|---|
Initial Design Retainer Fee | ✅ | ❌ |
Cost of Engineered Plans | ✅ | ❌ |
Plan Modifications (if needed) | ✅ | ❌ |
Transparency & Support
Total Estimated Cost (Standard Engineered Plan) | ✅ | ❌ |
Total Estimated Cost (With Modifications) | ✅ | ❌ |
Key Value Point | ✅ | ❌ |