plant

Tri Level

Share
red cedar barns wood

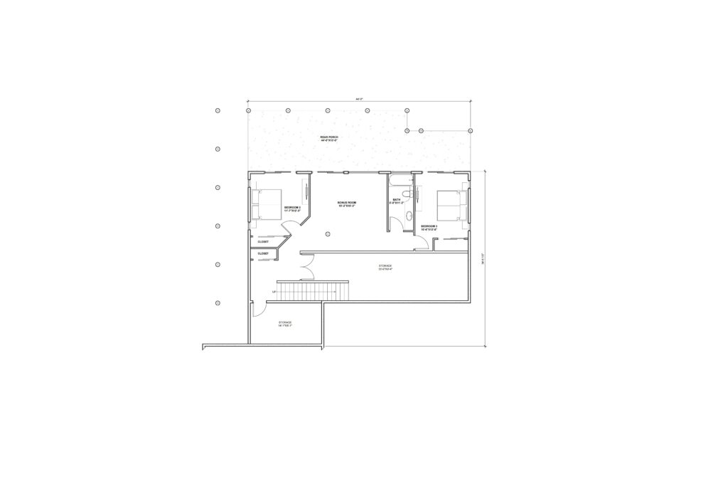
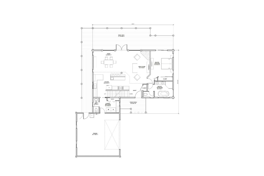
Log Home Floor Plan

[floorplanpreview]