Share:

Transformer

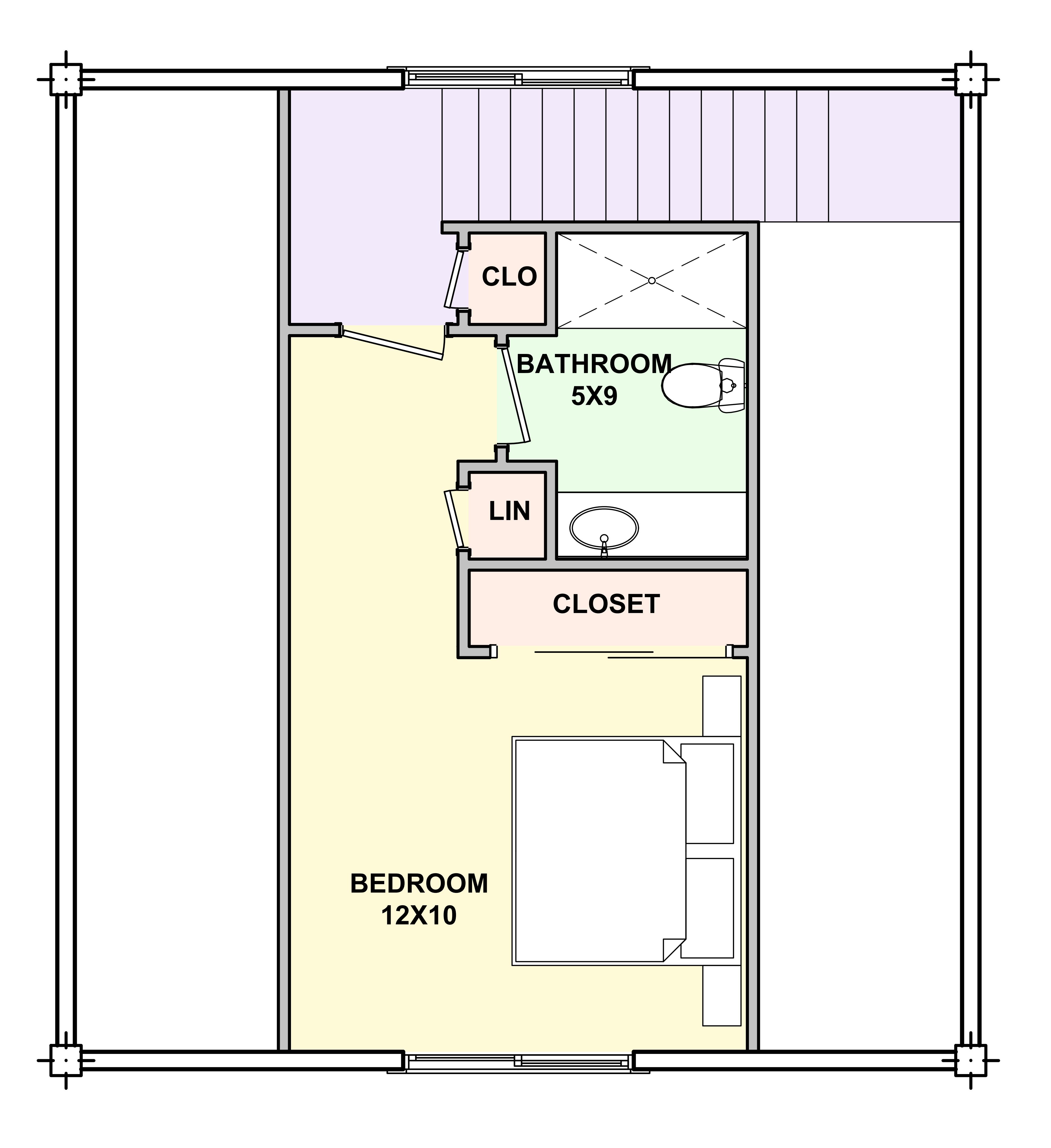
The Transformer log cabin combines compact design with spacious living, offering an ideal retreat or permanent home. With 864 sq ft total—576 sq ft in the main area and 288 sq ft in the left wing—it includes 2 bedrooms and 2 baths, perfect for families or guests. The open-concept layout enhances natural light and space, creating a bright, welcoming atmosphere. Engineered timber walls and energy-efficient insulation ensure durability and comfort. Its size supports lower maintenance and utility costs, making it ideal for year-round or seasonal living. Custom design options and porch extensions allow for personalization. Contact Sierra Log & Timber to explore pricing and customization and make your dream log home a reality.

SLT 046 Transformer II Main back 02
SLT 046 Transformer II Main back 02

Share:

Transformer

The Transformer log cabin combines compact design with spacious living, offering an ideal retreat or permanent home. With 864 sq ft total—576 sq ft in the main area and 288 sq ft in the left wing—it includes 2 bedrooms and 2 baths, perfect for families or guests. The open-concept layout enhances natural light and space, creating a bright, welcoming atmosphere. Engineered timber walls and energy-efficient insulation ensure durability and comfort. Its size supports lower maintenance and utility costs, making it ideal for year-round or seasonal living. Custom design options and porch extensions allow for personalization. Contact Sierra Log & Timber to explore pricing and customization and make your dream log home a reality.

Specs

Floor Plans

Elevations

Feature/Criteria
Sierra Log and Timber
Competitors (e.g., Monster Plans, Others)
Initial Design Retainer Fee
Cost of Engineered Plans
Plan Modifications (if needed)
Transparency & Support 
Total Estimated Cost (Standard Engineered Plan)
Total Estimated Cost (With Modifications)
Key Value Point