plant

Timber Palace

Share
red cedar barns wood

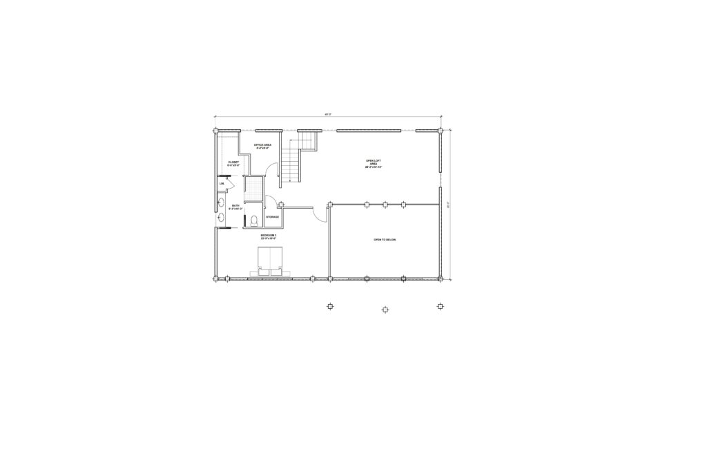
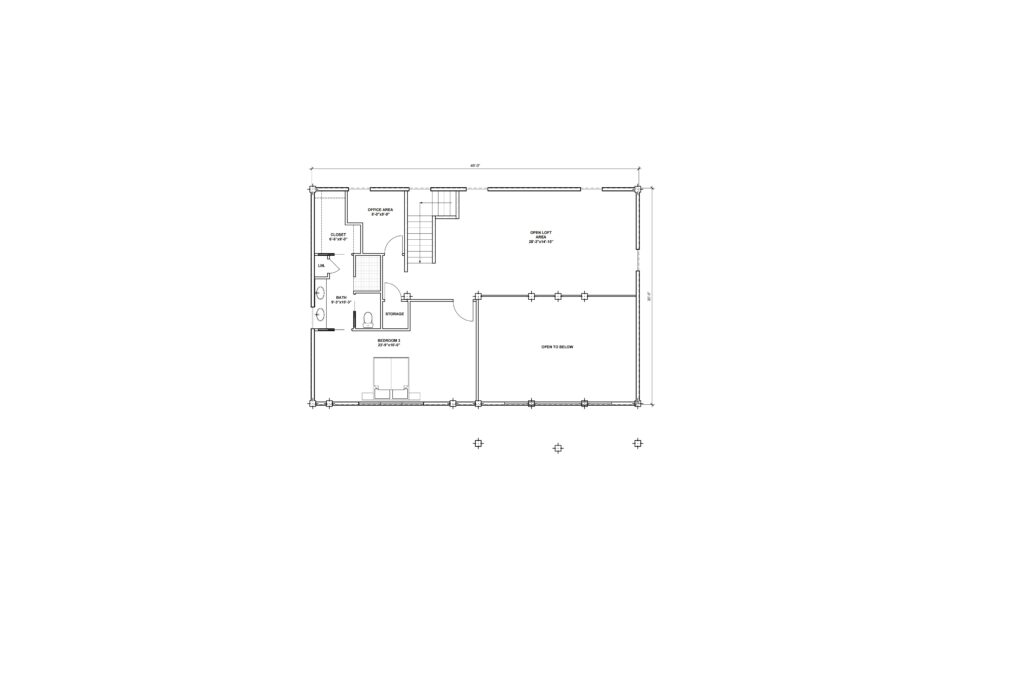
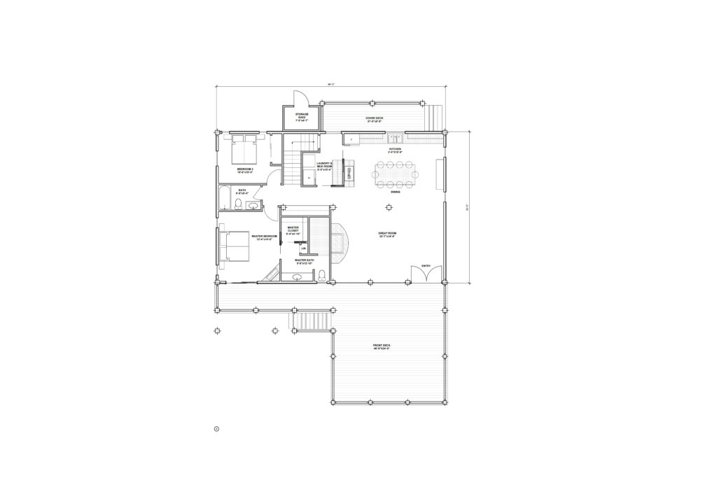
Log Home Floor Plan

[floorplanpreview]