plant

Ski Chalet

Share
red cedar barns wood

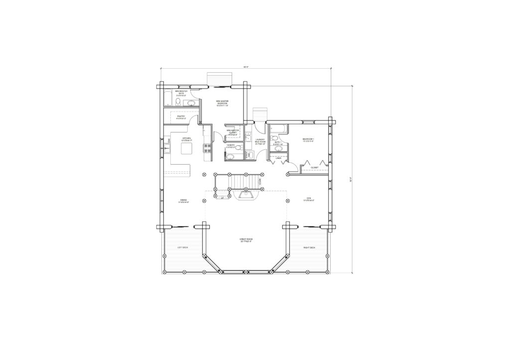
Log Home Floor Plan

[floorplanpreview]