River View – Rustic Elegance with Scenic Tranquility
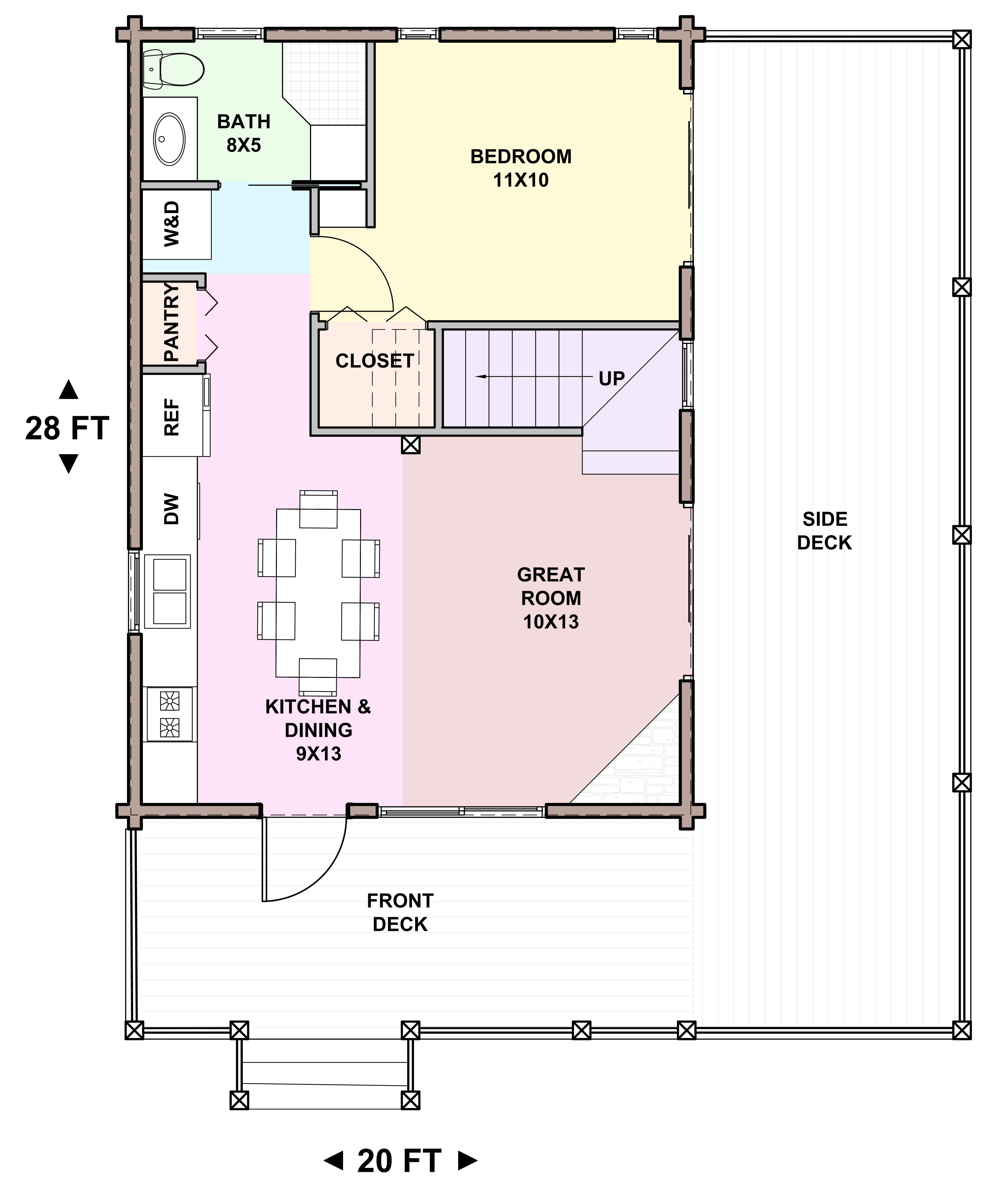
The River View cabin by Sierra Log & Timber offers a peaceful escape where rustic charm meets modern comfort. With 855 sq ft of living space and 526 sq ft of porches, this two-level design features 1 bedroom and 1 bathroom—ideal for couples, small families, or nature lovers. Enjoy riverfront views from the spacious porch, or relax in the warm interior with natural wood accents and an open floor plan that enhances light and flow. Whether it’s a seasonal retreat or year-round home, River View delivers beauty and function in a serene setting. Contact Sierra Log & Timber today to start customizing your riverfront dream cabin.










River View – Rustic Elegance with Scenic Tranquility
The River View cabin by Sierra Log & Timber offers a peaceful escape where rustic charm meets modern comfort. With 855 sq ft of living space and 526 sq ft of porches, this two-level design features 1 bedroom and 1 bathroom—ideal for couples, small families, or nature lovers. Enjoy riverfront views from the spacious porch, or relax in the warm interior with natural wood accents and an open floor plan that enhances light and flow. Whether it’s a seasonal retreat or year-round home, River View delivers beauty and function in a serene setting. Contact Sierra Log & Timber today to start customizing your riverfront dream cabin.
Feature/Criteria | Sierra Log and Timber | Competitors (e.g., Monster Plans, Others) |
|---|---|---|
Initial Design Retainer Fee | ✅ | ❌ |
Cost of Engineered Plans | ✅ | ❌ |
Plan Modifications (if needed) | ✅ | ❌ |
Transparency & Support
Total Estimated Cost (Standard Engineered Plan) | ✅ | ❌ |
Total Estimated Cost (With Modifications) | ✅ | ❌ |
Key Value Point | ✅ | ❌ |