Share:

Old Tahoe

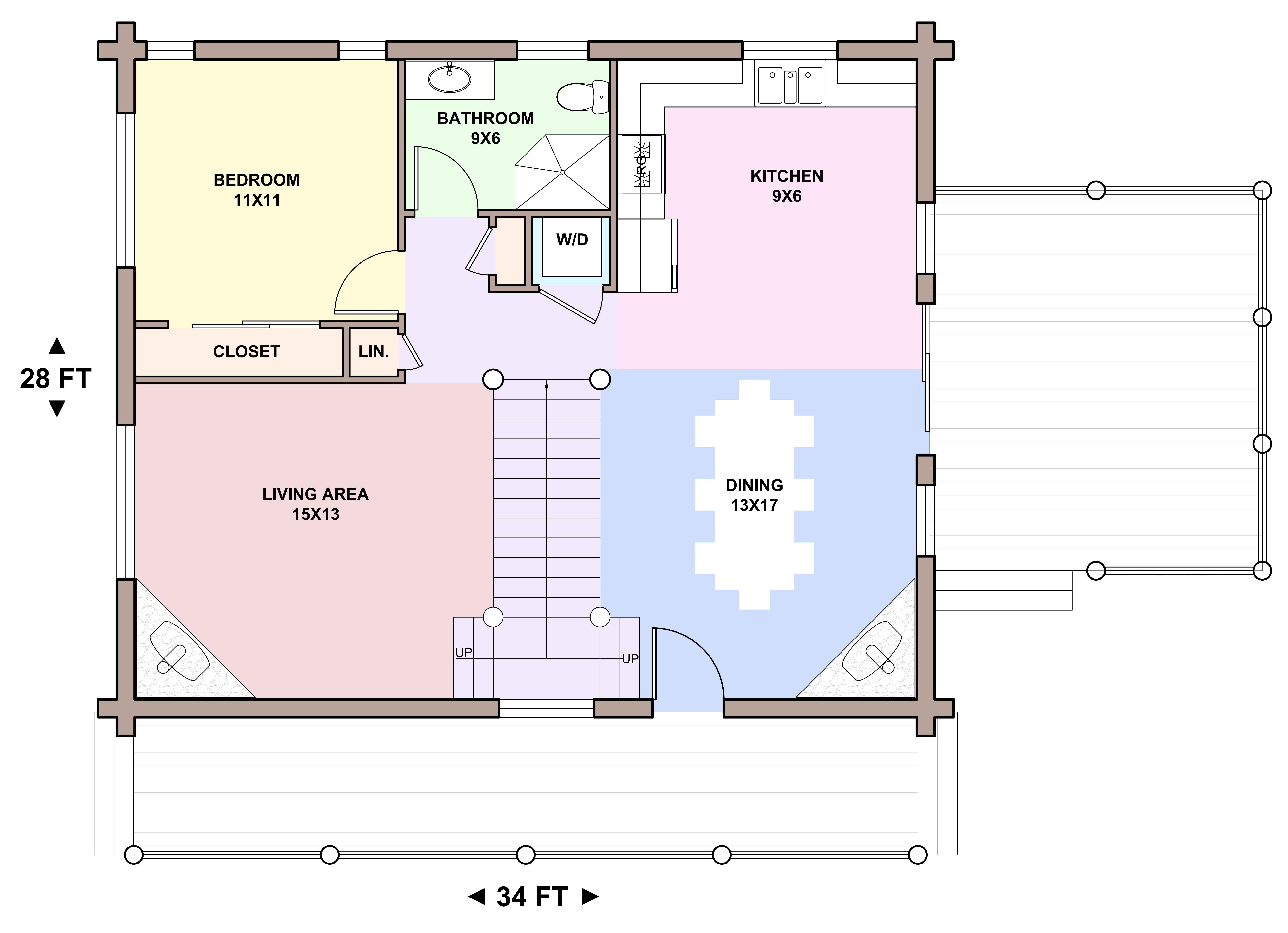
The Old Tahoe Project is a completed two-story residential log home with a total of 1,904 sq. ft. The design includes 3 bedrooms and 2 bathrooms. The main level measures 952 sq. ft., and the upper level provides an additional 952 sq. ft. The floorplan is balanced across both stories, ensuring efficient circulation and functional living arrangements. The Old Tahoe does not include a garage or basement. This project is finalized and available for inclusion in the technical gallery and project database.

SLT 070 Kirnos Main 001 6 11zon
SLT 070 Kirnos Main 001 6 11zon

Share:

Old Tahoe

The Old Tahoe Project is a completed two-story residential log home with a total of 1,904 sq. ft. The design includes 3 bedrooms and 2 bathrooms. The main level measures 952 sq. ft., and the upper level provides an additional 952 sq. ft. The floorplan is balanced across both stories, ensuring efficient circulation and functional living arrangements. The Old Tahoe does not include a garage or basement. This project is finalized and available for inclusion in the technical gallery and project database.

Specs

Floor Plans

Elevations

Feature/Criteria
Sierra Log and Timber
Competitors (e.g., Monster Plans, Others)
Initial Design Retainer Fee
Cost of Engineered Plans
Plan Modifications (if needed)
Transparency & Support 
Total Estimated Cost (Standard Engineered Plan)
Total Estimated Cost (With Modifications)
Key Value Point