plant

Moose Creek

Share
red cedar barns wood

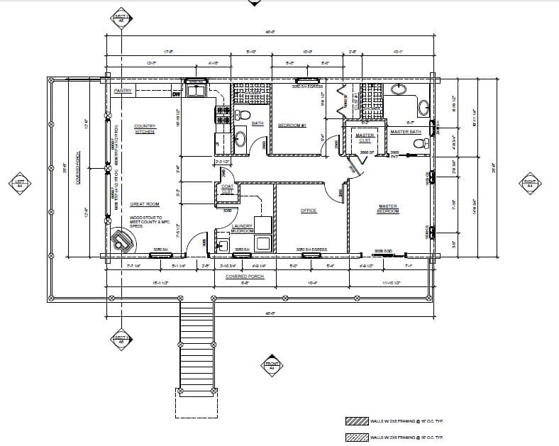
Log Home Floor Plan

[floorplanpreview]

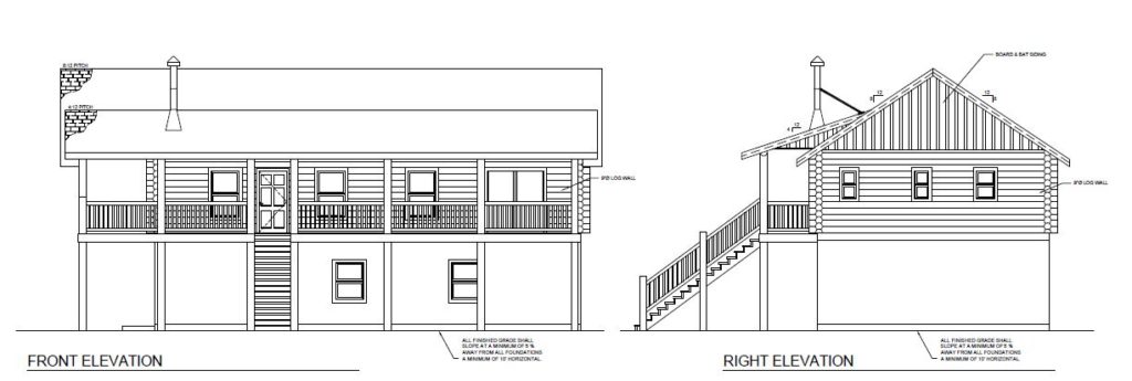
The Moose Creek is a bit larger than the popular Grizzly III design of much the same appearance but has 3 bedrooms and 2 bathrooms.  As built by Davis, extra space was obtained by placing it over a basement workshop.  Built with 9″ round logs gave Ken the look he wanted and space he needed for himself and his new bride.