plant

Missoula – Home

Share
red cedar barns wood

Log Home Floor Plan

[floorplanpreview]

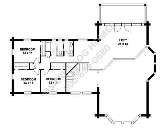
This is the “estate” size log home and great for families, especially large ones. Most rooms are oversized, especially the master suite and kitchen. Easily has the square footage for 4 to 5 bedrooms, guest rooms and many type of “play rooms” for specific activities, such as: crafts rooms, sewing rooms, offices, sports rooms, etc. Sierra specializes in custom home design. If our standard plan is almost right, let us make it perfect for you. It doesn’t mean it will cost more, it just means it will be exactly what you and your family want. So contact us, and let’s start by finding out what you need.

 

Features:

  • Great Room
  • Dining
  • Kitchen
  • Breakfast Bar
  • Pantry
  • Balcony
  • Covered Wraparound Porch
  • Fireplace
  • Walk-In Master Closet

 

Areas (2 floors):

  • Total: 3,990 sq ft
  • Basement: optional
  • Main: 2,590 sq ft
  • Second: 1,400 sq ft
  • Garage: 0 sq ft

 

Rooms:

  • Bedrooms: 4
  • Bathrooms: 2.5