plant

Lakeside – Home

Share
red cedar barns wood

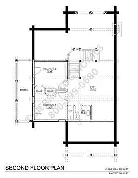
Log Home Floor Plan

[floorplanpreview]

Features:

  • Great Room
  • Entry
  • Dining
  • Kitchen
  • Kitchen Island
  • Master Walk-In Closet
  • Balcony
  • Attached Single Car Garage
  • Garage Laundry

 

Areas (2 floors):

  • Total: 1,754 sq ft
  • Basement: optional
  • Main: 1,131 sq ft
  • Second: 623 sq ft
  • Garage: 126 sq ft

 

Rooms:

  • Bedrooms: 3
  • Bathrooms: 2.5