Kennedy Log Home – Cozy Cabin Living with Outdoor Charm
The Kennedy log home by Sierra Log & Timber offers a cozy yet stylish two-story design with 1,200 sq ft of living space. Featuring two bedrooms and one bathroom, this compact home is ideal for small families, couples, or vacation getaways. The open living and dining areas include warm wood finishes, high ceilings, and large windows that fill the space with natural light. With 360 sq ft of decks/porches, outdoor living is front and center—perfect for morning coffee or evening gatherings. The upstairs loft adds flexible space for a second bedroom or office. Compact, elegant, and low-maintenance, the Kennedy is a smart choice for rustic living in any scenic setting.






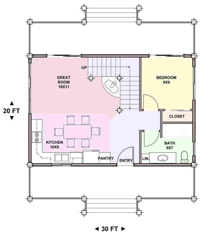
Kennedy Log Home – Cozy Cabin Living with Outdoor Charm
The Kennedy log home by Sierra Log & Timber offers a cozy yet stylish two-story design with 1,200 sq ft of living space. Featuring two bedrooms and one bathroom, this compact home is ideal for small families, couples, or vacation getaways. The open living and dining areas include warm wood finishes, high ceilings, and large windows that fill the space with natural light. With 360 sq ft of decks/porches, outdoor living is front and center—perfect for morning coffee or evening gatherings. The upstairs loft adds flexible space for a second bedroom or office. Compact, elegant, and low-maintenance, the Kennedy is a smart choice for rustic living in any scenic setting.
Feature/Criteria | Sierra Log and Timber | Competitors (e.g., Monster Plans, Others) |
|---|---|---|
Initial Design Retainer Fee | ✅ | ❌ |
Cost of Engineered Plans | ✅ | ❌ |
Plan Modifications (if needed) | ✅ | ❌ |
Transparency & Support
Total Estimated Cost (Standard Engineered Plan) | ✅ | ❌ |
Total Estimated Cost (With Modifications) | ✅ | ❌ |
Key Value Point | ✅ | ❌ |