plant

Grizzly III

Share
red cedar barns wood

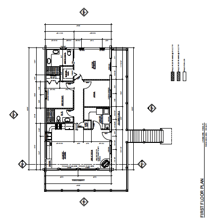
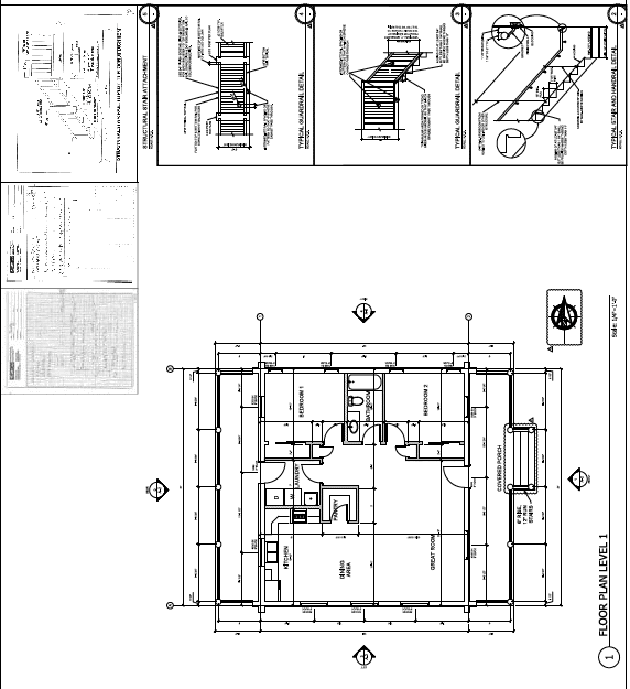
Log Home Floor Plan

[floorplanpreview]

Grizzly III

This is one of our most popular designs using 9″ round logs.  It features two bedrooms and one bath on one level and front porch and rear deck.  The ceilings are vaulted throughout with full-log gables, making it feel larger than life.  It is and economical design for empty nesters.