plant

Chalet

Share
red cedar barns wood

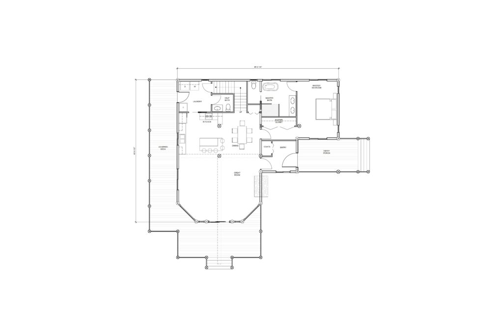
Log Home Floor Plan

[floorplanpreview]

Chalet