plant

Caribou – Home

Share
red cedar barns wood

Log Home Floor Plan

[floorplanpreview]

Caribou

Features:

  • Great Room
  • Entry
  • Dining
  • Kitchen
  • Kitchen Island
  • Pantry
  • Laundry/Mudroom
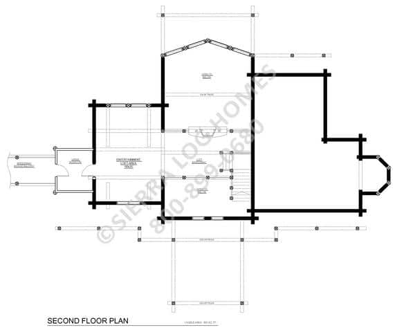
  • Entertainment Loft Area
  • Balcony
  • Master Walk-In Closet
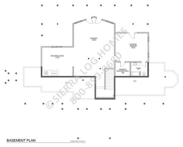
  • Optional Basement adds 1,724 sq ft

 

Areas (2 floors):

  • Total: 3,455 sq ft
  • Basement: 2,587 sq ft
  • Main: 2587 sq ft
  • Second: 868 sq ft
  • Garage: sq ft

 

Rooms:

  • Bedrooms: 3
  • Bathrooms: 2.5